TOP 新米★サラリーマン大家さん日記 X(旧Twitter)アカウント YouTubeチャンネル
18件目へ ★19件目 21件目へ
①引渡し直後 ★②解体・造作 ③完成プロセス ④リフォーム前と後・比較
19件目、物件詳細 ②解体・造作
| リフォーム内容、間取り変更 打ち合わせ | |
![]() |
|
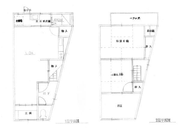
| 昭和34年築でお風呂もないですし、 玄関横、2階への階段の手前にキッチンがあり、真ん中にある3帖の部屋で ちゃぶ台を囲んで食事をする生活同線だったと思われます。 築50年以上の古い一戸建てなので、昔の畳は1帖が大きく部屋はとっても広く開放感がありました。 |
|
最初に提案された間取りプラン ![]() |
|
| トイレをキッチンのところに移動すると2階からのアクセスもよく、細かく区切られていた1階の部屋をすべて広いLDKへ変え、 キッチンとお風呂や洗面所を奥にまとめることで生活しやすい、ベストな間取りだと思います。 2階は、現状のままでも十分な間取りですので壁や畳の交換など表面的なリフォームできれいになります。 ただ、現状をいかすためお風呂が狭くなることと 1階奥に水回りを移動させるため、排水管やガス管の新設などでお金がかかり過ぎ200万円を超える 予算オーバーでした。 |
|
リフォーム開始間取り ![]() |
|
| リフォーム金額を安くするために職人さんが考えてくれた間取りです。 こちらで決定し、リフォームが始まりました。 予算を圧縮するため、1階奥の和室をそのまま使ったプランとなりました。 |
|
最終、リフォーム完了間取り ![]() |
|
| リフォーム開始して床をめくっていくと下地の傷みが激しかったこともあり、 解体作業や新しくお風呂を設置するための土台作成など下準備の工事に時間がかかっている間に 何度か職人さんと現場で打ち合わせする中で1階は和室よりリビングのいいな。 となり、最終的には広い和室をリビングに変更した間取りでリフォーム完成となりました。 中途半端に和室を残すより、こちらの広いリビングの方がいいと思いましたので満足な仕上がりでした。 |
| 解体開始 | ||
![]() |
||
![]() |
||
| 解体途中 | ||
![]() |
![]() |
![]() |
![]() |
||
![]() |
||
![]() |
![]() |
|
![]() |
||
| 造作工事 | ||
| 造作工事完成まじか | ||
TOPへ ページ上へ戻る X(旧Twitter)アカウント YouTubeチャンネル
18件目へ ★19件目 21件目へ
①引渡し直後 ★②解体・造作 ③完成プロセス ④リフォーム前と後・比較
Copyright(C)2005 めざせ、不動産投資で月々20万のキャッシュフロー!All right reserved